REQUEST A TOUR If you would like to see this home without being there in person, select the "Virtual Tour" option and your agent will contact you to discuss available opportunities.
In-PersonVirtual Tour

$ 15
$ 15
Key Details
Property Type Commercial
Sub Type Retail/Stores
Listing Status Active
Purchase Type For Rent
MLS Listing ID 12290074
Year Built 1966
Tax Year 2024
Property Sub-Type Retail/Stores
Property Description
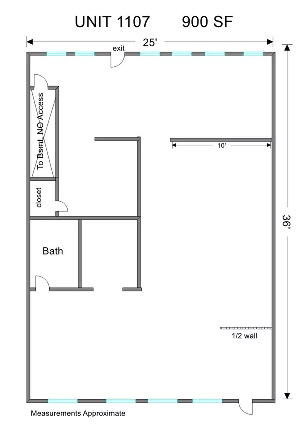
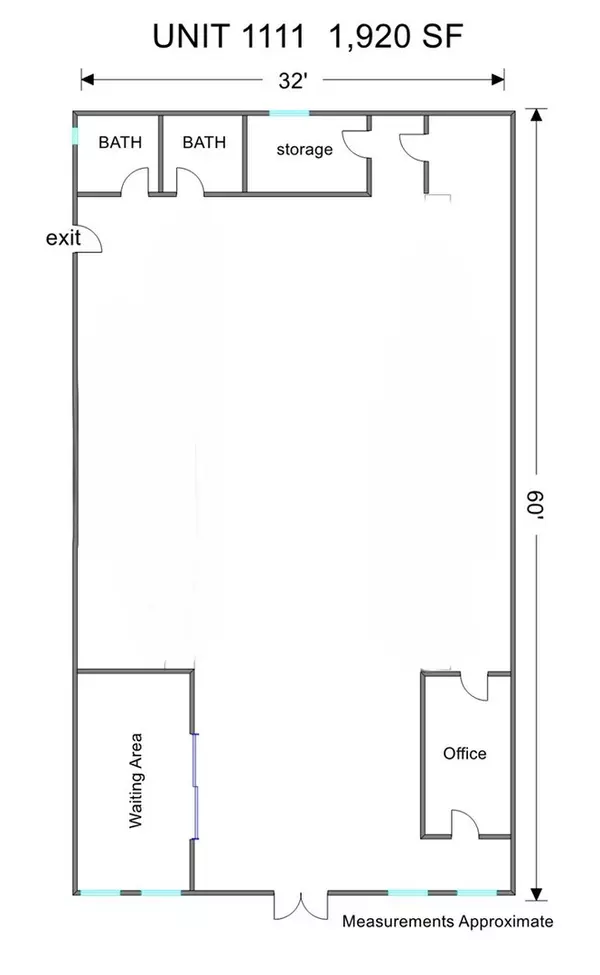
Two prime visibility storefronts in strip center at signalized intersection on Route 31 and Edgewood Dr. with 21,200 vpd. Unit 1107: 900 end unit, former motorcycle apparel shop. $1,125/mo. Gross. Unit 1111: 1,920 SF with large front windows. Ideal for salon, spa, or a multitude of retail uses. $2,400/mo. Gross.
Location
State IL
County Mchenry
Area Algonquin
Zoning COMMR
Interior
Cooling Central Air
Fireplace N
Building
Dwelling Type Retail/Stores

© 2025 Listings courtesy of MRED as distributed by MLS GRID. All Rights Reserved.
Listed by Shari Haefner of Premier Commercial Realty

GET MORE INFORMATION






